Expose anfordern


Expose anfordern
445.000 Euro

Baugrundstück I mit Baugenehmigung

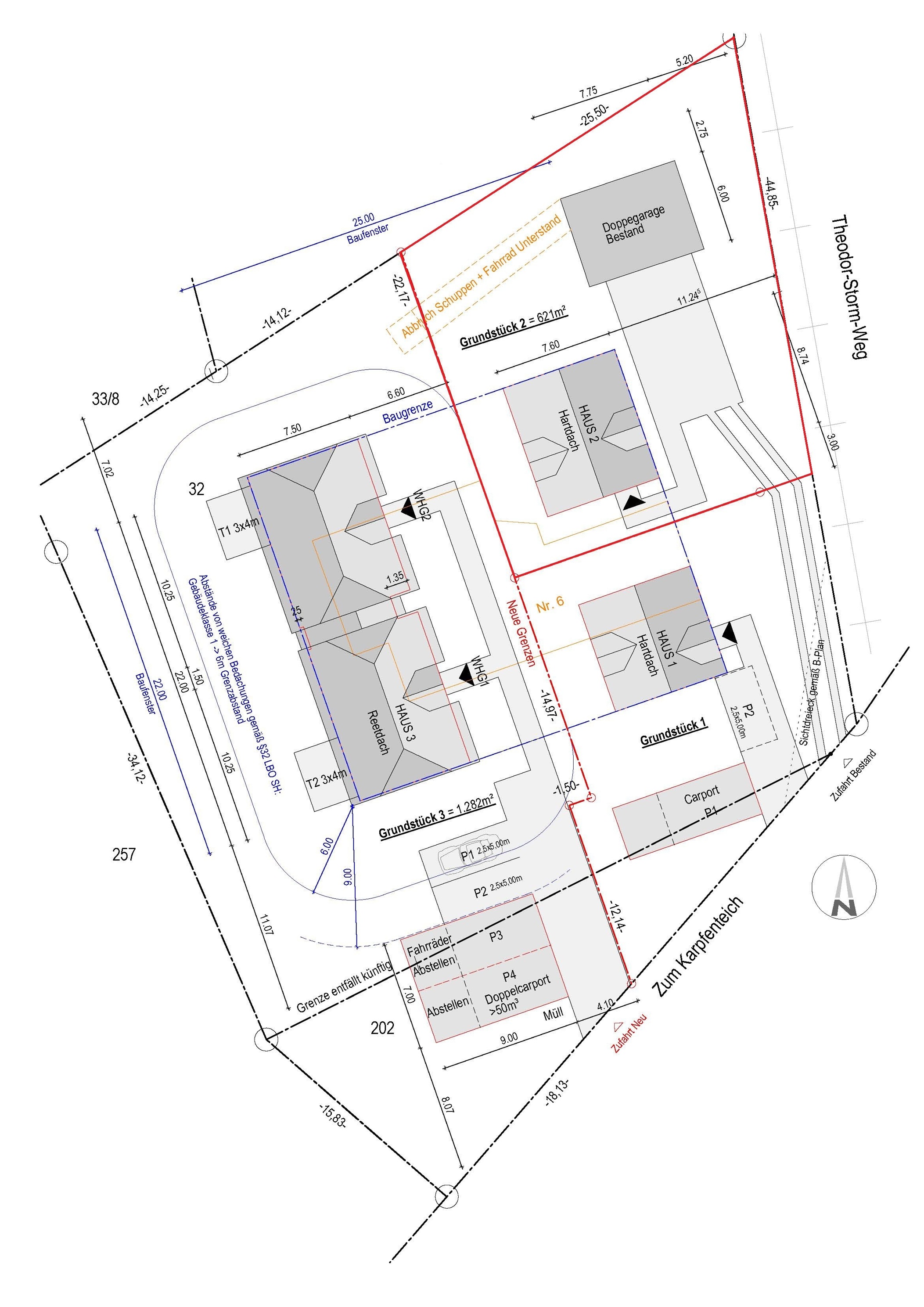
Dieses attraktive Grundstück ist Teil eines hochwertigen Ensembles aus insgesamt drei Bauplätzen im gefragten Ortsteil Böhl. Mit einer Grundflächenzahl von 0,2 bietet das Grundstück ideale Voraussetzungen für die Errichtung eines großzügigen Einfamilienhauses. Das Umfeld ist als reines Wohngebiet ausgewiesen, wodurch ein zweiter Wohnsitz problemlos möglich ist und sich sowohl Eigennutzer als auch Ferienhausinteressenten ideal aufgehoben fühlen. Die Lage überzeugt durch ihre ruhige und harmonische Wohnatmosphäre. Stilvolle Reetdachhäuser prägen das Ortsbild und unterstreichen die besondere Qualität dieses Bereichs von St. Peter-Ording. Die Nähe zur Böhler Landstraße sowie kurze Wege zum Böhler Strand, zum Leuchtturm und zu weitläufigen Rad- und Spazierwegen machen diesen Standort besonders attraktiv. Gleichzeitig sind der Ortsteil Dorf und damit sämtliche infrastrukturellen Einrichtungen wie Einkaufsmöglichkeiten, Restaurants, Ärzte und kulturelle Angebote in wenigen Minuten erreichbar. Zu dem Grundstück liegt bereits eine architektonisch ansprechende und vollständig ausgearbeitete Bebauungsplanung vor. Diese Planung umfasst die Errichtung eines Einfamilienhauses unter Hartdach und kann auf Wunsch direkt übernommen werden. Dadurch besteht die Möglichkeit, ohne zeitliche Verzögerung in die Realisierung des Bauprojekts zu starten. Wir stellen Ihnen die entsprechenden Unterlagen gern zur Verfügung und besprechen gemeinsam alle Optionen. Auf Wunsch unterstützen wir Sie zusätzlich bei der Vermittlung von Bauträgern, Bauunternehmen und Architekten, sodass Sie Ihr Bauvorhaben komfortabel und effizient umsetzen können. Dieses Grundstück verbindet eine hervorragende Lage, ein hochwertiges Umfeld und flexible Bebauungsmöglichkeiten. Es eignet sich ideal für alle, die in St. Peter-Ording ein wertbeständiges und zukunftsfähiges Bauprojekt realisieren möchten.

Daten und Fakten

Einheitennummer J&P-1196
Preis 445.000 €
Standort St. Peter-Ording
Grundstück ca. 656 m²
WR
Energieausweis wird nicht benötigt
Käuferprovision 3,57% inkl. MwSt.

Das Grundstück befindet sich im beliebten Ortsteil Böhl in einer ruhigen Verbindungsstraße zwischen der Böhler Landstraße und der Pestalozzi-Straße. Die Lage zeichnet sich durch ein harmonisches Wohnumfeld aus, in dem bereits mehrere ansprechende Reetdachhäuser entstanden sind und ein hochwertiges, nordfriesisch geprägtes Ortsbild bilden. Durch die geplante Ensemble-Bebauung aus insgesamt drei neuen Baukörpern entsteht hier ein besonders attraktives und stimmiges Gesamtumfeld mit hoher Wohnqualität. Der Ortsteil Böhl ist bekannt für sein naturnahes und entspanntes Wohngefühl. Der weitläufige Böhler Strand mit seinem berühmten Pfahlbau, der Böhler Leuchtturm sowie ausgedehnte Rad- und Wanderwege liegen nur wenige Minuten entfernt. Gleichzeitig bietet Böhl einen idealen Rückzugsort für all jene, die Ruhe schätzen und dennoch nicht auf eine gute Anbindung verzichten möchten. Der ebenso nahegelegene Ortsteil Dorf, das historische Zentrum von St. Peter-Ording, ist schnell erreichbar.

Hier finden sich vielfältige Einkaufsmöglichkeiten, Restaurants, kleine Boutiquen, Ärzte und öffentliche Einrichtungen. Die charmante Dorfstraße mit ihren Geschäften, Cafés und Friesenhäusern bildet das Herzstück des Ortes und kombiniert Tradition, Kultur und tägliche Lebensqualität auf angenehme Weise. Die Gemeinde St. Peter-Ording zählt zu den gefragtesten Adressen an der Nordseeküste. Mit seinen beeindruckenden Sandstränden, den markanten Pfahlbauten, der weitläufigen Dünenlandschaft und dem Nationalpark Wattenmeer bietet der Ort eine einzigartige Mischung aus Naturerlebnis, Erholung und Freizeitwert. Ob Wassersport, Strandspaziergänge, Wellness oder Kulinarik, St. Peter-Ording bietet zu jeder Jahreszeit beste Voraussetzungen für ein entspanntes und lebenswertes Umfeld. Die Kombination aus ruhiger Wohnlage in Böhl, der Nähe zum lebendigen Ortsteil Dorf sowie den vielfältigen Natur- und Freizeitmöglichkeiten macht diese Grundstückslage besonders attraktiv, sowohl für Eigennutzer als auch für Kapitalanleger.

EG

OG

Sonstiges

Sämtliche Angaben stammen von Informationen des Eigentümers, für deren Richtigkeit wir keine Gewähr übernehmen können. Wir bitten darum, uns unverzüglich zu Informieren, falls Ihnen dieses Angebot bereits bekannt ist. Beachten Sie bitte, dass dieses Angebot streng vertraulich ist, und jede unautorisierte Weitergabe zur Provisionspflicht führen kann. Irrtum und Zwischenkauf bleiben vorbehalten. Wir legen großen Wert auf die Vertraulichkeit dieser Informationen.

Haben wir Ihr Interesse geweckt? Fordern Sie das Exposé an.

Sie möchten direkt mit uns sprechen? Sie erreichen uns unter +49 4863 950 740. Wir freuen uns auf Ihren Anruf.

Pflichtfelder