

DHH unter Reet | Strandhaferring
Strandhaferring unverwechselbarer Charme mit wunderschönen Reetdachhäusern
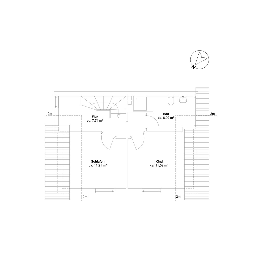
Zum Verkauf steht eine im Jahr 2008 erbaute, charmante Doppelhaushälfte mit einer Gesamtfläche von 100 m², gelegen auf einem idyllischen, von einem Friesenwall umgebenen Grundstück von 615 m². Diese Immobilie bietet mit ihren vier Zimmern, darunter zwei Schlafzimmer und ein Badezimmer, die ideale Wohnatmosphäre für Ihren Urlaub in der begehrten Ferienregion St. Peter-Ording. Beim Betreten des Erdgeschosses erwartet Sie ein großzügiges Wohnzimmer, das durch seine offene Gestaltung und die integrierte, moderne Küche beeindruckt. Die Küche ist vollständig mit hochwertigen Mielelektrogeräten ausgestattet und lässt keine Wünsche offen. Ein Gäste-WC sowie ein praktischer Abstellraum ergänzen das Raumangebot im Erdgeschoss. Vom Wohnbereich aus gelangen Sie auf die sonnige Terrasse und in den herrlichen Garten, der in Südwestausrichtung liegt und reichlich Platz für entspannte Stunden im Freien bietet. Der Garten ist ein echtes Highlight, umgeben von einem typischen Friesenwall, der nicht nur Privatsphäre schafft, sondern auch den traditionellen Charme der Region unterstreicht. Eine Treppe führt Sie ins Obergeschoss, wo zwei gemütliche Schlafzimmer sowie ein vollwertiges Badezimmer auf Sie warten. Diese Etage bietet den perfekten Platz für die ganze Familie, um sich nach einem Tag am Strand zu erholen. Darüber hinaus bietet der Spitzboden zusätzliche Nutzungs- und Gestaltungsmöglichkeiten. Dieser Raum ist durch eine Glastür abgetrennt und kann als zusätzlicher, abgeschlossener Raum genutzt werden – ideal als Rückzugsort. Die Doppelhaushälfte liegt in einer der begehrtesten Wohngegenden von St. Peter-Ording, im malerischen Strandhaferring. Der Strandhaferring ist bekannt für seine einzigartige Anordnung von wunderschönen Reetdachhäusern, die sich harmonisch in die umliegende Landschaft einfügen und den typischen Charakter des Ortes widerspiegeln. Die Gegend besticht durch ihre ruhige und doch zentrale Lage, umgeben von gepflegten Friesenwällen und einer farbenprächtigen Vegetation, die im Laufe des Jahres ein beeindruckendes Naturschauspiel bietet. Der großzügige Garten mit seiner einladenden Terrasse ist perfekt für entspannte Sommerabende und bietet ausreichend Platz für Familie und Freunde. Besonders hervorzuheben sind die beiden Doppelgaragen und die zusätzlichen Stellplätze vor der Tür, die nicht nur ausreichend Platz für Ihre Fahrzeuge bieten, sondern auch zusätzlichen Stauraum und der praktische HWR der Platz für eine Waschmaschine und einen Trockner bietet. Diese wunderschöne Doppelhaushälfte wird möbliert übergeben und ist sofort bezugsfertig. Sie bietet eine seltene Gelegenheit, in eine der schönsten Gegenden von St. Peter-Ording zu ziehen und den unverwechselbaren Charme der Region zu genießen. Lassen Sie sich bei einer persönlichen Besichtigung von dieser besonderen Immobilie überzeugen und entdecken Sie Ihr neues Zuhause oder Feriendomizil in St. Peter-Ording.
Daten und Fakten

Schlafzimmer II


Spitzboden
St. Peter-Ording - Idylle an der Nordsee
Die wunderschöne Doppelhaushälfte liegt im begehrten Strandhaferring, einer äußerst beliebten Wohngegend im Ortsteil Böhl von St. Peter-Ording. Böhl ist einer der vier Ortsteile St. Peter-Ordings und besonders bekannt für seinen markanten Leuchtturm. Der Ortsteil Böhl bietet eine Vielzahl an Freizeitmöglichkeiten. In unmittelbarer Nähe befindet sich ein Golfplatz, der derzeit zu einem 18-Loch-Golfplatz ausgebaut wird und Golfliebhabern erstklassige Bedingungen bietet. Böhl ist zudem bekannt für seine hervorragende Gastronomie, darunter die berühmten Pfahlbauten, die nicht nur kulinarische Genüsse, sondern auch einen einmaligen Ausblick auf die Nordsee bieten. Die Gegend lädt zu ausgedehnten Spaziergängen durch die malerische Natur ein, die durch ihre unberührte Schönheit besticht. Der Ortskern von St. Peter-Ording ist ebenfalls schnell und bequem erreichbar. Mit dem Fahrrad sind es nur wenige Minuten, bis Sie sämtliche infrastrukturellen Einrichtungen, Restaurants, Cafés und Einkaufsmöglichkeiten erreichen können.
Dies macht den Standort besonders attraktiv, da er Ruhe und Naturnähe mit den Annehmlichkeiten des täglichen Lebens perfekt kombiniert. Der Strandhaferring selbst ist bekannt für seine wunderschönen Reetdachhäuser, die sich ringförmig aneinanderreihen und so dem Wohngebiet seinen charakteristischen Namen verleihen. Die traditionelle Bauweise und die gepflegte Umgebung machen diese Lage zu einem begehrten Wohnort für all jene, die den typischen Charme von St. Peter-Ording schätzen und gleichzeitig die Vorzüge einer zentralen Lage genießen möchten. St. Peter-Ording hat sich in den letzten Jahren zu einer der führenden Urlaubsregionen an der Nordsee entwickelt. Dank seiner hervorragenden Erreichbarkeit, insbesondere im Vergleich zu den Inseln, zieht St. Peter-Ording jedes Jahr zahlreiche Besucher an. Mit seinen kilometerlangen Stränden, den einzigartigen Pfahlbauten und der beeindruckenden Dünenlandschaft bietet der Ort eine ideale Kombination aus Erholung und Freizeitmöglichkeiten. Ob Wassersport, Wellness oder Naturerlebnisse – St. Peter-Ording hat sich als das Urlaubsdomizil an der deutschen Nordseeküste etabliert und erfreut sich wachsender Beliebtheit bei Urlaubern aus ganz Europa.

EG

OG

DG
Sonstiges
Sämtliche Angaben stammen von Informationen des Eigentümers, für deren Richtigkeit wir keine Gewähr übernehmen können. Wir bitten darum, uns unverzüglich zu Informieren, falls Ihnen dieses Angebot bereits bekannt ist. Beachten Sie bitte, dass dieses Angebot streng vertraulich ist, und jede unautorisierte Weitergabe zur Provisionspflicht führen kann. Irrtum und Zwischenkauf bleiben vorbehalten. Wir legen großen Wert auf die Vertraulichkeit dieser Informationen.
Haben wir Ihr Interesse geweckt? Fordern Sie das Exposé an.
Sie möchten direkt mit uns sprechen? Sie erreichen uns unter +49 4863 950 740. Wir freuen uns auf Ihren Anruf.