Expose anfordern


Expose anfordern
1.350.000 Euro

Einziehen | ankommen | wohlfühlen | Stilvolles Zuhause mit Urlaubsgefühl

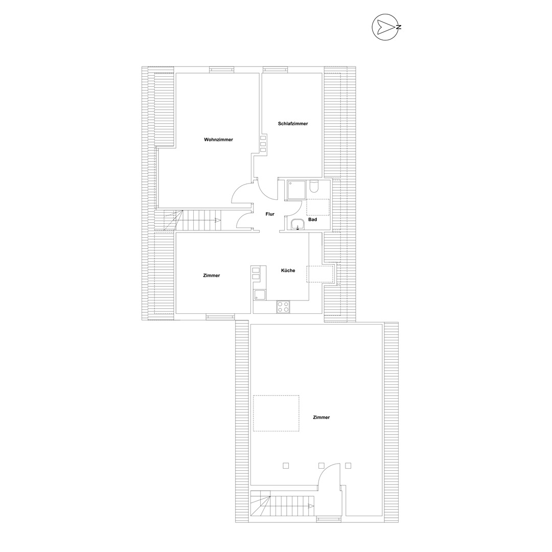
Direkt am Kreisel des Ortsausgangs von Dorf befindet sich dieses außergewöhnlich gepflegte Objekt von hoher Qualität und Ausstrahlung. Auf einer Gesamtfläche von ca. 168 m², verteilt auf insgesamt 7 Zimmer, entfaltet sich hier ein Zuhause mit viel Raum für individuelle Wohnideen. Das wunderschöne, großzügige Grundstück mit einer Fläche von ca. 1.393 m² bietet dabei eine besondere Mischung aus Weitläufigkeit, Privatsphäre und liebevoll gestalteten Rückzugsorten. Schon auf den ersten Blick vermittelt das Anwesen Ruhe, Großzügigkeit und eine besondere Wertigkeit. Umgeben von einem neu angelegten Gartenensemble vereint die Immobilie stilvolles Wohnen mit durchdachter Funktionalität und vielseitigen Nutzungsmöglichkeiten.

Das Objekt ist baurechtlich als Objekt mit zwei Wohnungen genehmigt und verfügt über zwei separate Grundbücher. Sämtliche Einheiten werden derzeit in der Ferienvermietung genutzt. Eine baurechtliche Nutzungsänderung zur teilweise offiziellen Ferienvermietung liegt derzeit nicht vor und müsste bei Bedarf noch beantragt werden. Die Lage ist dabei besonders attraktiv. In nur wenigen Minuten erreicht man den Ortskern, während das Grundstück selbst angenehm ruhig am Ortsausgang liegt.

In den Jahren 2020/2021 wurde das Gebäude mit viel Liebe zum Detail umfassend und hochwertig saniert. Die Stromleitungen sowie Sicherungskästen wurden nahezu vollständig erneuert, ebenso die Wasserleitungen und Teile des Abwassersystems. Alle drei Bäder präsentieren sich in zeitlos elegantem Design mit hochwertigen Ausstattungen von Duravit und Dornbracht. Fenster im Untergeschoss und im Anbau inklusive der Dachfenster wurden erneuert, ebenso sämtliche Haustüren, Wohnungseingangstüren und Innentüren. Neue Heizkörper im Untergeschoss und im Anbau sorgen für zeitgemäßen Wohnkomfort. Abgerundet wird die Sanierung durch neue Bodenbeläge im gesamten Haus.

Ein besonderes Augenmerk wurde auf den Außenbereich gelegt, der vollständig neu angelegt wurde. Drei großzügige Terrassen, eine aufwendig gestaltete Dünenlandschaft und harmonisch eingebettete Ruhebereiche schaffen eine fast schon urlaubsähnliche Atmosphäre. Das Highlight des Gartens ist das hochwertige Saunahäuschen im Garten. Ein Rückzugsort für entspannte Stunden zu jeder Jahreszeit. Ergänzt wird das Wellnessangebot durch einen Whirlpool im Außenbereich, der derzeit nicht in Betrieb ist.

Das Objekt wird vollständig möbliert verkauft und ist sofort bezugs- beziehungsweise vermietfertig. Die überwiegend von Riviera Maison stammende Einrichtung unterstreicht den eleganten, wohnlichen Charakter des Hauses. Zum Inventar zählen außerdem drei hochwertige CocoMat Betten, drei voll ausgestattete Einbauküchen, drei Strandkörbe sowie das exklusive Saunahaus im Garten.

Die Wohnung im Obergeschoss verfügt zusätzlich über einen großzügigen Dachboden, der weitere Nutzungs- und Gestaltungsmöglichkeiten bietet.

Im Garten sind bereits Zu und Ableitungen für ein Tiny House vorbereitet, dessen Genehmigungsfähigkeit im Einzelfall geprüft werden müsste. Das Objekt befindet sich seit 2022 in der Ferienvermietung.

Das Haus wurde ursprünglich 1962 errichtet, die Anlagentechnik stammt aus dem Jahr 2008.

Dieses Anwesen verbindet hochwertige Substanz, liebevolle Gestaltung und vielseitige Perspektiven. Ein Ort, der nicht nur Wohnraum bietet, sondern ein echtes Zuhause mit Urlaubsgefühl.

Daten und Fakten

Einheitennummer J&P-1219
Baujahr ca. 1962
Preis 1.350.000 €
Standort St. Peter-Ording
Wohnfläche ca. m²
Grundstück ca. 1.393 m²
Zimmer 7
Schlafzimmer 3
Badezimmer 2
Gesamtfläche ca. 167,76 m²
Energieausweistyp Verbrauchausweis
Baujahr laut Energieausweis 1962
Heizungsart Gas-Heizung
Wesentlicher Energieträger Gas
Endenergieverbrauch 146,40 kWh/(m²*a)
Energieklasse E
Käuferprovision 3,57% inkl. MwSt.

St. Peter-Ording | Dorf

Das Objekt befindet sich am Ortsausgang des Ortsteils Dorf und überzeugt durch eine außergewöhnlich ausgewogene Lage, die Ruhe, Privatsphäre und eine hervorragende Infrastruktur miteinander verbindet. Der Ortskern von St. Peter Dorf ist in nur wenigen Minuten fußläufig erreichbar. Einkaufsmöglichkeiten, Supermärkte, Bäckereien, Cafés sowie weitere infrastrukturelle Angebote lassen sich bequem zu Fuß, mit dem Fahrrad oder in kurzer Zeit mit dem Auto erreichen.

Die Nähe zur Nordsee verleiht der Lage einen besonderen Reiz. Der Strand sowie die weitläufigen Dünenlandschaften sind schnell erreichbar und laden zu ausgedehnten Spaziergängen, Fahrradtouren und erholsamen Stunden am Meer ein. Auch der Ortsteil Böhle mit seinem beliebten Golfplatz ist in kurzer Zeit erreichbar und ergänzt das vielfältige Freizeitangebot der Umgebung.

Trotz der Lage an der Straße bietet das großzügige Grundstück ein hohes Maß an Privatsphäre. Die Weitläufigkeit des Grundstücks sowie die liebevoll und hochwertig gestalteten Außenbereiche schaffen geschützte Rückzugsorte und ein angenehmes Wohngefühl. Hier genießt man Ruhe und Entspannung, ohne auf die Vorzüge einer zentralen und bestens angebundenen Lage verzichten zu müssen.

Insgesamt vereint diese Lage auf besondere Weise die Nähe zum Ortskern, kurze Wege zum Strand, ein vielfältiges Freizeitangebot sowie ein hohes Maß an Wohnqualität. Eine perfekte Kombination für Eigennutzer, Feriengäste und Kapitalanleger gleichermaßen.

EG

OG

Sonstiges

Sämtliche Angaben stammen von Informationen des Eigentümers, für deren Richtigkeit wir keine Gewähr übernehmen können. Wir bitten darum, uns unverzüglich zu Informieren, falls Ihnen dieses Angebot bereits bekannt ist. Beachten Sie bitte, dass dieses Angebot streng vertraulich ist, und jede unautorisierte Weitergabe zur Provisionspflicht führen kann. Irrtum und Zwischenkauf bleiben vorbehalten. Wir legen großen Wert auf die Vertraulichkeit dieser Informationen.

Haben wir Ihr Interesse geweckt? Fordern Sie das Exposé an.

Sie möchten direkt mit uns sprechen? Sie erreichen uns unter +49 4863 950 740. Wir freuen uns auf Ihren Anruf.

Pflichtfelder