

Hochwertige Reetdachhaushälfte in Ording | Einheit ° Zwei
Zeitlos Elegant
Willkommen in Ihrem neuen Zuhause im malerischen Ortsteil Ording, einem der gefragtesten Wohnorte in St. Peter-Ording. Hier erwartet Sie ein einzigartiges Doppelhaus unter Reet, das dank seiner durchdachten Aufteilung das Gefühl eines Einfamilienhauses vermittelt. Das Doppelhaus liegt auf einem über 1000 m² großem Grundstück und garantiert somit für beide Haushälfte ausreichend Privatsphäre. Das Haus befindet sich aktuell in der Projektierungsphase und bietet sowohl die Möglichkeit, als Erstwohnsitz als auch als Zweitwohnsitz genutzt zu werden. Die gesamte Wohnfläche von 123 m² verteilt sich auf drei Zimmer, die durch ihre hochwertige Ausstattung bestechen. Dänische Holzsprossenfenster und der antike Verblender unterstreichen den besonderen Charme des Hauses. Der Innenbereich ist mit hochwertigen Materialien wie Natursteinböden und Eichenholzparkett ausgestaltet, was dem Objekt eine zeitlose Eleganz verleiht.
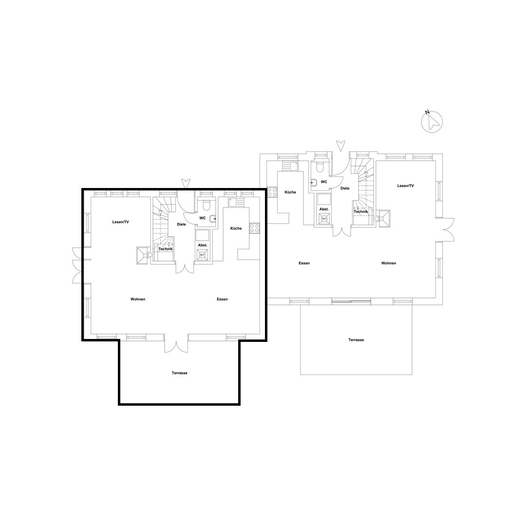
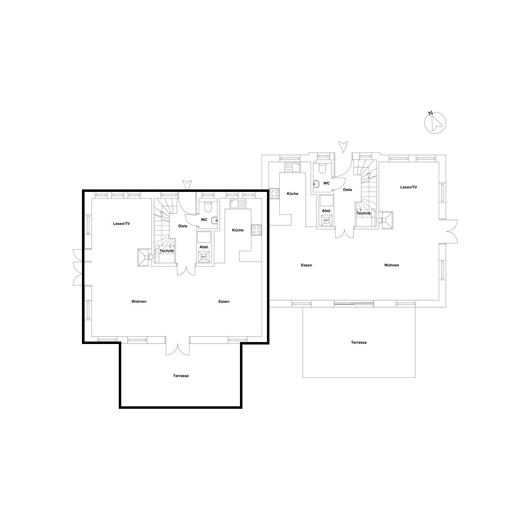
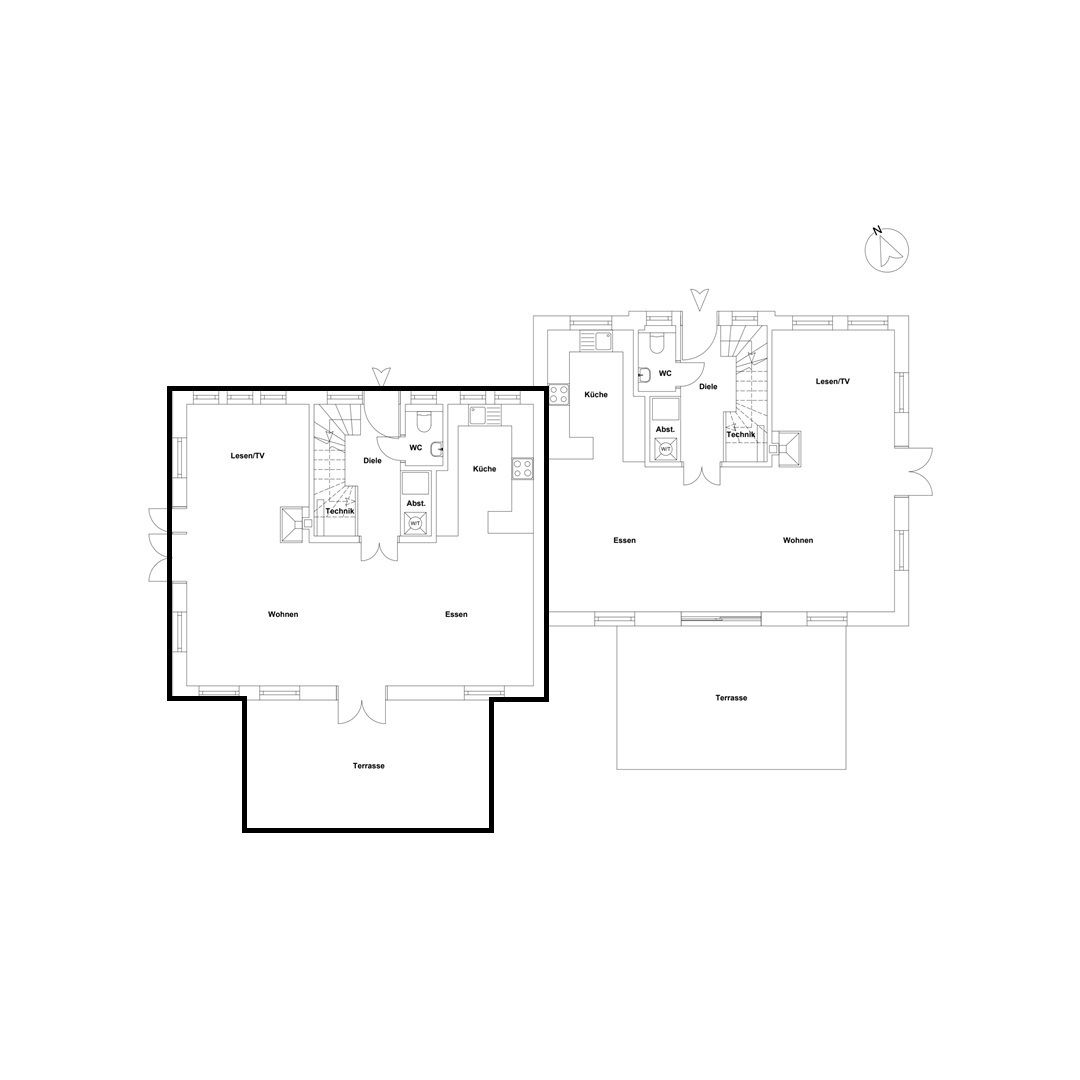
Im Erdgeschoss empfängt Sie ein großzügiger Wohnbereich, der nahtlos in eine offenen Küchenbereich übergeht. Ein Gäste-WC und ein Technikbereich runden das Angebot auf dieser Etage ab.
Über eine wunderschöne Holztreppe gelangen Sie in das Obergeschoss. Hier finden Sie das Hauptschlafzimmer mit Bad en Suite. Ein weiteres Badezimmer und Schlafzimmer sowie ein zusätzlicher Raum, der flexibel als Sauna, Arbeitszimmer oder Kinderzimmer genutzt werden kann, stehen ebenfalls zur Verfügung.
Das Objekt wird schlüsselfertig übergeben. Die Fertigstellung ist für Ende 2025 geplant. Die Außenanlagen werden ortstypisch gestaltet, sodass einem sofortigen Einzug nach Fertigstellung nichts im Wege steht. Die besondere Ausstattung, die perfekte Lage und die Nähe zum Strand machen dieses Objekt zu einem wahren Unikat. Ein weiteres Highlight dieses wunderschönen Reetdachhauses sind die perfekt in Südausrichtung gelegenen Terrassen. Diese bieten Ihnen den ganzen Tag über viel Sonne und schaffen ideale Bedingungen für gemütliche Stunden im Freien. Zu jeder Wohneinheit gehören außerdem zwei Stellplätze, die Ihnen und Ihren Gästen ausreichend Parkmöglichkeiten direkt am Haus bieten. So ist Ihr komfortables Wohnen garantiert, ohne sich Gedanken über die Parkplatzsuche machen zu müssen.
Ording als einer der beliebtesten und ortstypischen Ortsteile in St. Peter-Ording überzeugt durch seine direkte Lage zum Strand und die gute Anbindung an Gastronomie und Einkaufsmöglichkeiten. Dieses Objekt vereint idyllisches Wohnen mit modernem Komfort und bietet Ihnen die perfekte Lage für Ihr neues Zuhause.
Daten und Fakten

Ansicht Nord mit Hauseingängen


Ansicht Süd mit Terrassen
Malerisches Ording
Dieses wunderschöne Reetdachhaus befindet sich im begehrten Ortsteil Ording, einem der vier charmanten Ortsteile von St. Peter-Ording. Das Objekt liegt in einer ruhigen Straße, abseits des Trubels, und bietet somit eine friedliche und erholsame Wohnatmosphäre. Gleichzeitig ist das Meer bequem zu Fuß erreichbar, was Ihnen ermöglicht, jederzeit die frische Meeresluft und den weiten Horizont zu genießen. In unmittelbarer Nähe finden Sie eine Vielzahl an gastronomischen Angeboten und Attraktionen, die St. Peter-Ording zu einem beliebten Urlaubsziel machen. Die Region ist berühmt für ihre weiten Strände, die perfekten Bedingungen für Windsurfen, Strandsegeln und verschiedene Weltmeisterschaften bieten. Die Nähe zum Strand ermöglicht Ihnen, diese sportlichen Aktivitäten direkt vor der Haustür zu erleben.
St. Peter-Ording ist nicht nur ein Paradies für Wassersportler, sondern bietet auch eine lebendige Kulturszene und zahlreiche Freizeitmöglichkeiten. Der Ortsteil Ording selbst ist besonders beliebt wegen seiner idyllischen Lage und der guten Anbindung an die übrigen Ortsteile sowie die zentrale Infrastruktur von St. Peter-Ording. Hier können Sie die Ruhe und den Komfort eines gehobenen Wohnviertels genießen, ohne auf die Annehmlichkeiten und Attraktionen der Umgebung verzichten zu müssen. Dieses Reetdachhaus kombiniert perfekt die Vorzüge einer ruhigen Lage mit der Nähe zu den zahlreichen Freizeit- und Erholungsmöglichkeiten, die St. Peter-Ording zu bieten hat. Es ist der ideale Ort, um den Alltag hinter sich zu lassen und die besondere Lebensqualität der Nordseeküste zu genießen.

EG

OG
Sonstiges
Sämtliche Angaben stammen von Informationen des Eigentümers, für deren Richtigkeit wir keine Gewähr übernehmen können. Wir bitten darum, uns unverzüglich zu Informieren, falls Ihnen dieses Angebot bereits bekannt ist. Beachten Sie bitte, dass dieses Angebot streng vertraulich ist, und jede unautorisierte Weitergabe zur Provisionspflicht führen kann. Irrtum und Zwischenkauf bleiben vorbehalten. Wir legen großen Wert auf die Vertraulichkeit dieser Informationen.
Haben wir Ihr Interesse geweckt? Fordern Sie das Exposé an.
Sie möchten direkt mit uns sprechen? Sie erreichen uns unter +49 4863 950 740. Wir freuen uns auf Ihren Anruf.