Expose anfordern


Expose anfordern
1.223.200 Euro

Maisonette Wohnung in Westerhever | Wasserkoog NR° I

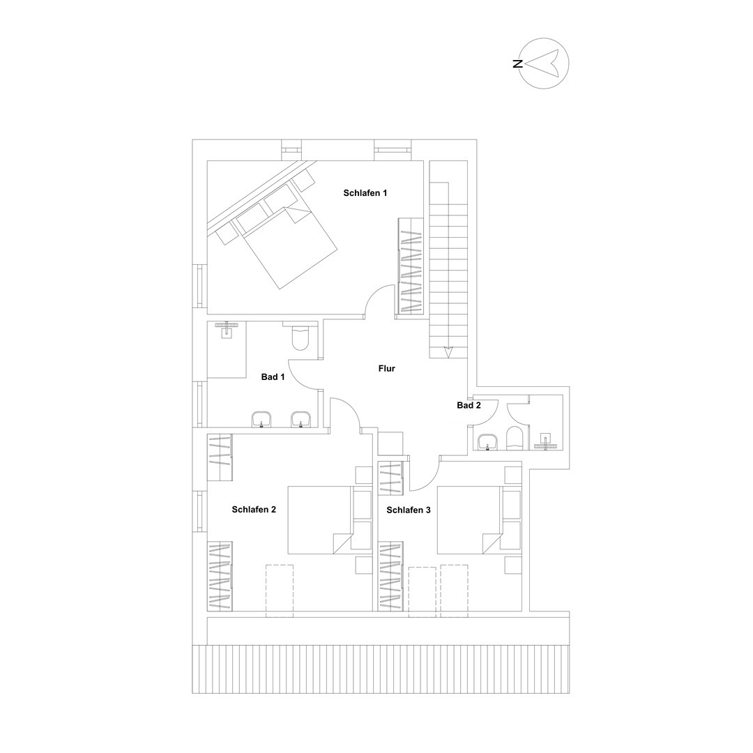
Die zum Verkauf stehende Maisonette Wohnung, befindet sich in der ehemaligen alten Schule von Westerhever und wurde vollständig saniert. Ausgestattet von dem renommierten Designer Olaf Kitzig, ist die Wohnung komplett möbliert und offiziell für die Ferienvermietung genehmigt. Auf zwei Etagen bietet die Wohnung im Erdgeschoss einen großzügigen Ess- und Wohnbereich mit separierter Küche und ein Gäste-WC. Eine offene Treppe führt ins Obergeschoss, das drei weitere Schlafzimmer und zwei Badezimmer beherbergt. Jeder Raum ist mit hochwertigen Materialien wie Eichenholzböden, exquisiten Tischeinbauten und edlen Möbeln ausgestattet. Der Außenbereich umfasst eine schöne Terrasse mit Krustenplatten und bietet einen herrlichen Blick auf die Landschaft von Westerhever vor den Toren von St. Peter Ording. Zusätzlich bietet das Objekt einen Abstellraum und einen Parkplatz, ein weiterer Parkplatz kann optional erworben werden. Insgesamt befinden sich 15 Einheiten in der Anlage, deren Außenanlagen ortstypisch gestaltet sind mit Friesenwellen, großen Steinen und anderen ortstypischen Materialien. Auf der über 13.000​​​​ Quadratmeter großen Anlage finden die Bewohner einen Schwimmteich, einen Spielplatz sowie ein Gym zur allgemeinen Nutzung. Diese Annehmlichkeiten bieten den Bewohnern die Möglichkeit, die traumhafte Umgebung in vollen Zügen zu genießen und das Beste aus ihrem Wohnumfeld herauszuholen. Lassen Sie sich von diesem tollen Projekt und der Einzigartigkeit vor Ort überzeugen. Gerne präsentieren wir Ihnen die Anlage bei einem persönlichen Termin vor Ort.

Daten und Fakten

Einheitennummer J&P-1033
Baujahr ca. 1879
Preis 1.223.200 €
Standort Westerhever
Wohnfläche ca. 127,69 m²
Grundstück ca. 13050 m²
Zimmer 4
Schlafzimmer 3
Badezimmer 2
Energieausweis Bedarfsausweis
Heizungsart Fußbodenheizung
Wesentlicher Energieträger Erdwärme
Endenergiebedar 27,3 kWh/(m²*a)
Baujahr Energieträger 2024
Energieklasse A+
Käuferprovision 2,38% inkl. MwSt.

Wohnbereich

Bad Obergeschoss

Einzigartige Lage in Westerhever

Willkommen in Westerhever, einem Ort von unvergleichlicher Schönheit und Ruhe an der Nordseeküste Schleswig-Holsteins. Hier, in der ehemaligen alten Schule von Westerhever, erwartet Sie ein einzigartiges Wohnprojekt mit 15 luxuriösen Ferienwohnungen.

Umgeben von der atemberaubenden Weite und Natur Westerhevers, bietet dieses Projekt seinen Bewohnern eine unvergleichliche Lebensqualität. Der Ort ist bekannt für seine unberührten Landschaften, endlosen Horizonte und die faszinierende Nordseeküste. Die Ruhe und Gelassenheit der Umgebung laden zum Entspannen und Verweilen ein.

Die Nähe zu St. Peter-Ording, einem beliebten Nordseeort, bietet den Bewohnern vielfältige Möglichkeiten für Freizeitaktivitäten und Erholung. Hier erwarten Sie endlose Sandstrände, malerische Dünen und eine lebendige Atmosphäre.

Die einzigartige Lage des Projekts in Westerhever wird durch den ikonischen Westerhever-Leuchtturm geprägt, der majestätisch über die Küstenlandschaft ragt. Dieses historische Wahrzeichen verleiht der Umgebung einen ganz besonderen Charme und macht sie zu einem Ort von zeitloser Schönheit.

Erleben Sie das Beste, was die Nordseeküste zu bieten hat, in diesem exklusiven Wohnprojekt in der alten Schule von Westerhever. Willkommen in Ihrem neuen Zuhause, wo Luxus, Natur und Geschichte auf einzigartige Weise verschmelzen.

EG

OG

Sonstiges

Sämtliche Angaben stammen von Informationen des Eigentümers, für deren Richtigkeit wir keine Gewähr übernehmen können. Wir bitten darum, uns unverzüglich zu Informieren, falls Ihnen dieses Angebot bereits bekannt ist. Beachten Sie bitte, dass dieses Angebot streng vertraulich ist, und jede unautorisierte Weitergabe zur Provisionspflicht führen kann. Irrtum und Zwischenkauf bleiben vorbehalten. Wir legen großen Wert auf die Vertraulichkeit dieser Informationen.

Haben wir Ihr Interesse geweckt? Fordern Sie das Exposé an.

Sie möchten direkt mit uns sprechen? Sie erreichen uns unter +49 4863 950 740. Wir freuen uns auf Ihren Anruf.

Pflichtfelder