

Wohnen direkt am Deich | Ording
Naturnahen Lage mit urbaner Nähe
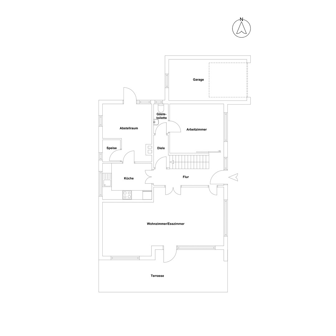
Dieses charmante Einfamilienhaus aus dem Jahr 1967 bietet mit ca. 125 m² Wohnfläche und insgesamt sieben Zimmern viel Platz für die ganze Familie. Vier Schlafzimmer ermöglichen individuelle Rückzugsorte für Groß und Klein, während das großzügige Raumangebot zusätzlich Platz für ein Arbeitszimmer, Gästezimmer oder Hobbyraum bereithält.
Im Erdgeschoss befindet sich neben dem einladenden Wohn- und Essbereich ein praktisches Gäste-WC. Das Obergeschoss verfügt über ein hell gefliestes Wannenbad, das zur Entspannung einlädt. Die Raumaufteilung ist funktional und familienfreundlich, mit großen Fenstern, die viel Tageslicht in die Räume lassen.
Das Haus steht auf einem großzügigen Grundstück von 1.024 m² in zweiter Reihe hinter dem Deich – eine ruhige und geschützte Lage in Ording, die dennoch zentral gelegen ist. Der weitläufige Garten bietet zahlreiche Gestaltungsmöglichkeiten und ausreichend Platz zum Spielen, Gärtnern oder Entspannen.
Die Nähe zum Strand macht diese Immobilie besonders attraktiv – in wenigen Minuten erreicht man die Nordsee und kann das maritime Flair in vollen Zügen genießen. Auch Einkaufsmöglichkeiten sowie weitere Einrichtungen des täglichen Bedarfs sind bequem erreichbar.
Eine Planung für ein Doppelhaus unter Reet liegt bereits vor und eröffnet interessante Perspektiven für eine moderne Neubebauung. Alternativ ist auch die Errichtung eines Einzelhauses auf dem Grundstück möglich. Gerne unterstützen wir Sie bei der Planung und Umsetzung Ihrer individuellen Wohnideen.
Diese Immobilie vereint die Vorteile einer naturnahen Lage mit urbaner Nähe – ideal für Familien, Ruhesuchende oder als Feriendomizil an der Nordsee.
Daten und Fakten
Lebensqualität an der Nordseeküste
Dieses Einfamilienhaus befindet sich im begehrten Ortsteil Ording, einem der vier charmanten Ortsteile von St. Peter-Ording. Das Objekt liegt in einer ruhigen Straße, abseits des Trubels, und bietet somit eine friedliche und erholsame Wohnatmosphäre. Gleichzeitig ist das Meer bequem zu Fuß erreichbar, was Ihnen ermöglicht, jederzeit die frische Meeresluft und den weiten Horizont zu genießen. In unmittelbarer Nähe finden Sie eine Vielzahl an gastronomischen Angeboten und Attraktionen, die St. Peter-Ording zu einem beliebten Urlaubsziel machen. Die Region ist berühmt für ihre weiten Strände, die perfekten Bedingungen für Windsurfen, Strandsegeln und verschiedene Weltmeisterschaften bieten. Die Nähe zum Strand ermöglicht Ihnen, diese sportlichen Aktivitäten direkt vor der Haustür zu erleben.
St. Peter-Ording ist nicht nur ein Paradies für Wassersportler, sondern bietet auch eine lebendige Kulturszene und zahlreiche Freizeitmöglichkeiten. Der Ortsteil Ording selbst ist besonders beliebt wegen seiner idyllischen Lage und der guten Anbindung an die übrigen Ortsteile sowie die zentrale Infrastruktur von St. Peter-Ording. Hier können Sie die Ruhe und den Komfort eines gehobenen Wohnviertels genießen, ohne auf die Annehmlichkeiten und Attraktionen der Umgebung verzichten zu müssen. Dieses Reetdachhaus kombiniert perfekt die Vorzüge einer ruhigen Lage mit der Nähe zu den zahlreichen Freizeit- und Erholungsmöglichkeiten, die St. Peter-Ording zu bieten hat. Es ist der ideale Ort, um den Alltag hinter sich zu lassen und die besondere Lebensqualität der Nordseeküste zu genießen.

EG

OG
Sonstiges
Sämtliche Angaben stammen von Informationen des Eigentümers, für deren Richtigkeit wir keine Gewähr übernehmen können. Wir bitten darum, uns unverzüglich zu Informieren, falls Ihnen dieses Angebot bereits bekannt ist. Beachten Sie bitte, dass dieses Angebot streng vertraulich ist, und jede unautorisierte Weitergabe zur Provisionspflicht führen kann. Irrtum und Zwischenkauf bleiben vorbehalten. Wir legen großen Wert auf die Vertraulichkeit dieser Informationen.
Haben wir Ihr Interesse geweckt? Fordern Sie das Exposé an.
Sie möchten direkt mit uns sprechen? Sie erreichen uns unter +49 4863 950 740. Wir freuen uns auf Ihren Anruf.