

Wohntraum im Stillen Dorf
Eindrucksvolles Reetdachhaus im Stillen Dorf
Dieses traumhafte Reetdach-Haus befindet sich in exklusiver und ruhiger Lage im Stillen Dorf von Sankt Peter-Ording. Das idyllische Umfeld bietet die perfekte Kombination aus Abgeschiedenheit und Nähe zu den Annehmlichkeiten des täglichen Lebens. Ein echter Geheimtipp für Liebhaber von Ruhe und Exklusivität.
Das Einfamilienhaushaus wurde 1972 in massiver Bauweise errichtet. Im Jahr 2010 wurden umfassende Dämmarbeiten durchgeführt, und das Reetdach komplett erneuert. Der Heidefirst sowie die Gasheizung wurden im Jahr 2023 erneuert.
Beim Betreten des Hauses gelangen Sie in einen einladenden Flur, der direkt in die Wohnräume führt. Das großzügige Wohnzimmer mit offenem Kamin schafft eine gemütliche und warme Atmosphäre, ideal für entspannte Stunden. Direkt im Anschluss befindet sich der helle Essbereich, der durch große Fenster viel Tageslicht erhält und einen wunderschönen Blick auf die Terrasse und den Garten bietet. Die Einbauküche ist voll ausgestattet und bietet reichlich Arbeitsfläche für Kochbegeisterte. Ein praktisches Duschbad im Erdgeschoss ergänzt die Räumlichkeiten und ist ideal für Gäste.
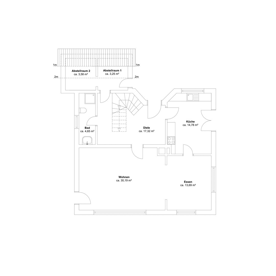
Im Obergeschoss erwarten Sie drei helle und geräumige Schlafzimmer, die jeweils viel Platz und eine freundliche Atmosphäre bieten. Ein großes Vollbad mit Tageslicht sorgt für Komfort und Entspannung. Auch der Spitzboden bietet vielfältige Gestaltungs- und Nutzungsmöglichkeiten. Nutzen Sie das Potenzial dieses Raumes, um die vorhandene Wohnfläche durch die Einrichtung von zwei zusätzlichen Räumen zu erweitern. Dank der hohen Deckenhöhen und der großzügigen Fläche des Spitzbodens lässt sich der Wohnraum mühelos vergrößern. Mit etwas Glück haben Sie sogar die Möglichkeit, einen Blick bis zum Meer zu erhaschen. Greifen Sie diese Gelegenheit, um zusätzlichen, individuell gestaltbaren Wohnraum zu schaffen und den einzigartigen Charakter dieses Hauses weiter zu bereichern.
Das eindrucksvolle Reetdach-Haus ist eingebettet auf einem über 1000 Quadratmeter großen Grundstück im idyllischen Stillen Dorf und besticht durch seine außergewöhnliche Privatsphäre und Exklusivität. Diese wird durch das gewachsene und sorgfältig gepflegte Grundstück gewährleistet. Wunderschöne große Rhododendren in lebhaften Farben sowie eine Vielzahl an Bäumen und Sträuchern, alle in makellosem Zustand, verleihen dem Anwesen einen unvergleichlichen Charme. Die prächtigen Büsche schaffen nicht nur eine ruhige und abgeschirmte Atmosphäre, sondern unterstreichen auch die Einzigartigkeit des Grundstücks. Von jeder Blickachse der umliegenden Terrasse aus können Sie die malerische Schönheit des bezaubernden Gartens bewundern. Die harmonische Verbindung des traditionellen Reetdachs mit der üppigen Natur- und Gartenbepflanzung macht dieses Anwesen zu einem wahren Juwel. Eine Garage mit elektrischem Tor, sowie ein zusätzlicher Stellplatz im Carport bieten sicheren und geschützten Parkraum für Ihre Fahrzeuge.
Dieses reetgedeckte Einfamilienhaus ist eine seltene Gelegenheit, die perfekte Mischung aus idyllischem Landleben und exklusivem Wohnkomfort zu erleben. Lassen Sie sich von der besonderen Atmosphäre und der ruhigen Lage verzaubern und machen Sie dieses traumhafte Haus in Sankt Peter-Ording zu Ihrem neuen Zuhause! Für weitere Informationen und zur Vereinbarung eines Besichtigungstermins stehen wir Ihnen jederzeit gerne zur Verfügung.
Daten und Fakten
Lagebeschreibung
Dieses wunderschöne Einfamilienhaus liegt im Stillen Dorf von Sankt Peter-Ording, einer der exklusivsten und attraktivsten Lagen in Sankt Peter-Dorf. Die Umgebung zeichnet sich durch ihre Ruhe und Naturverbundenheit aus, wodurch sie den perfekten Rückzugsort vom hektischen Alltag bietet. Gleichzeitig profitieren Sie von einer hervorragenden Infrastruktur, die Ihnen alle notwendigen Annehmlichkeiten in unmittelbarer Nähe bietet.
Sankt Peter-Dorf ist bekannt für seine idyllische Atmosphäre und bietet zahlreiche Einkaufsmöglichkeiten, gemütliche Cafés und Restaurants, die zum Verweilen einladen. Die Kombination aus Natur und erstklassiger Lage macht dieses Viertel zu einem begehrten Wohnort.
Ob ausgedehnte Spaziergänge am Deich, Radtouren durch die malerische Landschaft oder entspannte Stunden am Strand – hier können Sie das Leben in vollen Zügen genießen.
Die exzellente Anbindung an öffentliche Verkehrsmittel und die Nähe zu wichtigen Verkehrswegen sorgen dafür, dass Sie jederzeit flexibel und mobil bleiben. So erreichen Sie schnell und bequem die umliegenden Städte und Sehenswürdigkeiten.
Zusammengefasst bietet Ihnen dieses Haus im stillen Dorf von Sankt Peter-Ording eine einzigartige Gelegenheit, in einer der besten Lagen zu wohnen und die perfekte Balance zwischen Ruhe, Natur und städtischem Komfort zu erleben.

EG

OG
Sonstiges
Sämtliche Angaben stammen von Informationen des Eigentümers, für deren Richtigkeit wir keine Gewähr übernehmen können. Wir bitten darum, uns unverzüglich zu Informieren, falls Ihnen dieses Angebot bereits bekannt ist. Beachten Sie bitte, dass dieses Angebot streng vertraulich ist, und jede unautorisierte Weitergabe zur Provisionspflicht führen kann. Irrtum und Zwischenkauf bleiben vorbehalten. Wir legen großen Wert auf die Vertraulichkeit dieser Informationen.
Haben wir Ihr Interesse geweckt? Fordern Sie das Exposé an.
Sie möchten direkt mit uns sprechen? Sie erreichen uns unter +49 4863 950 740. Wir freuen uns auf Ihren Anruf.